INGRID & ROMAIN APARTMENT
________________________________________________________________________________________________
" The space was configured using storage volumes mixed with each other to create useful surfaces for different uses. "
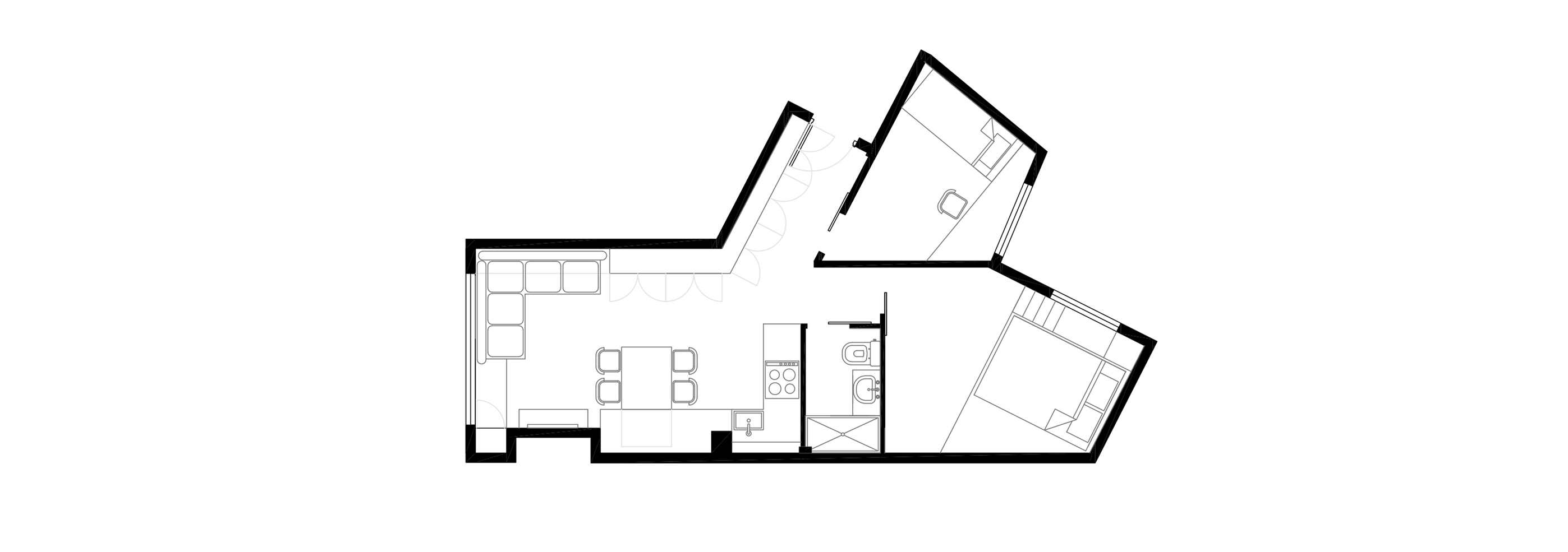
Ingrid and Romain were fortunate enough to buy an apartment in Paris. However, the space and the sunlight were very limited. Therefore, every decision I made was to maximize the space and the materials chosen, looking to increase the rebound of the light: the main goal was to create an illuminated and spacious place. All the furniture was made up with storage volumes and most of the walls were also used as storage cabinets.
"El espacio se configura mediante volumenes de almacenaje entrelazados para crear superficies útiles de diferentes usos."
Ingrid y Romain son lo suficientemente afortunados para comprar un apartamento en París. Sin embargo, el espacio es muy reducido y la cantidad de luz que tiene es escasa. Por este motivo, cada decisión tomada busca aprovechar al máximo los espacios y los materiales escogidos buscan aumentar el rebote de la luz, todo ello para crear un espacio amplio y luminoso sin serlo.Todo el mobiliario esta formado por volumenes con almacenaje en el interior, y la mayoría de las paredes cuenta con armarios.








